untitled

Compound Preparation

Compound Preparation

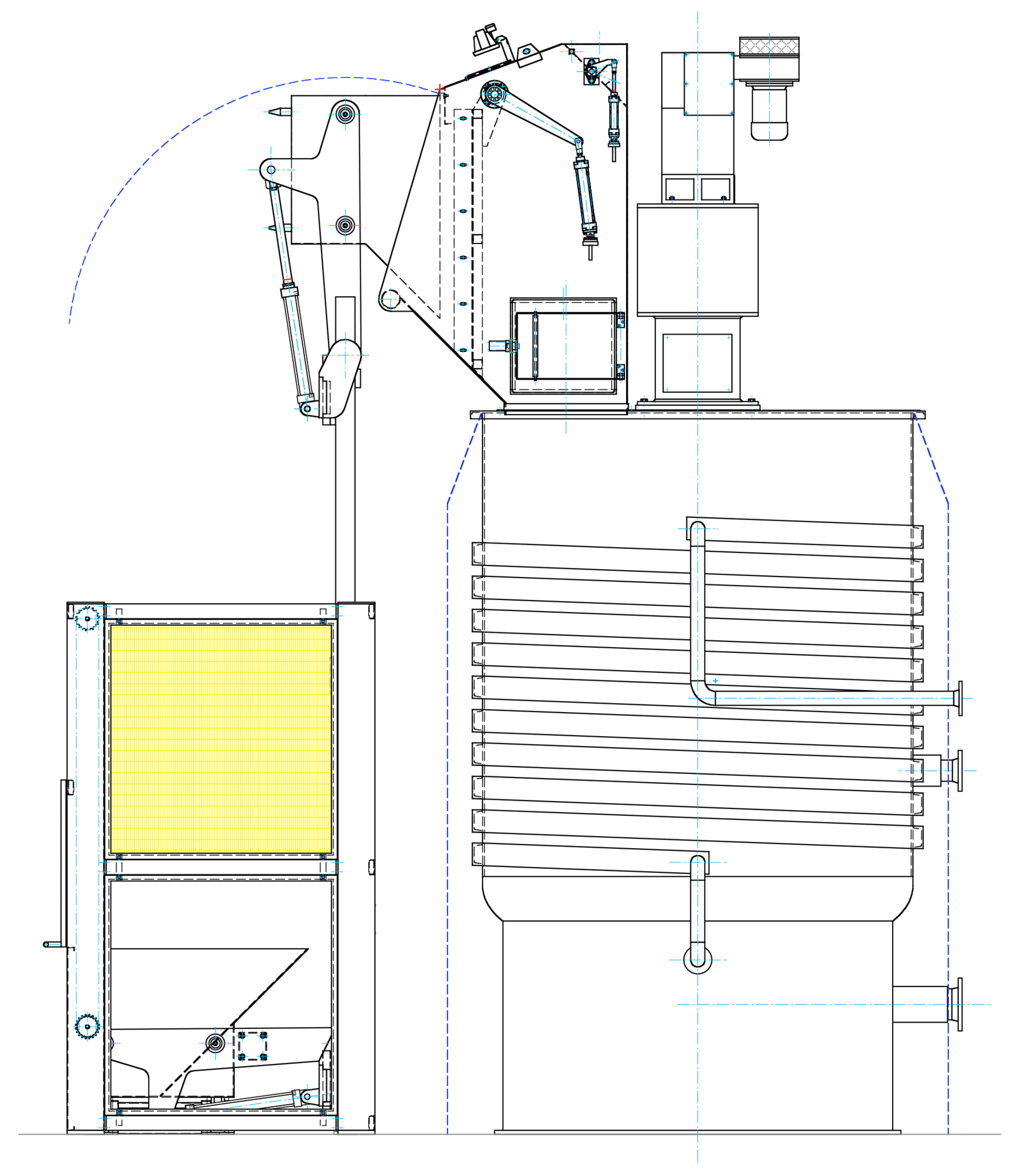
The compound preparation system has a fundamental characteristic that differentiates it from all other traditional systems, namely that the transfer between the mixer and the holding tanks takes place by gravity, therefore without pumps and filters and in a very short time of 3 ... 5 minutes.

The loading system of the polymers is through an elevator loading system which, when it is at home, rests on a scale.

It is not necessary to prepare the load as the resins are taken directly from the package, handling them only once.

Once weighed, the automatic loading phase is started. The elevator goes up and down to the load hood, which has a door that opens allowing the load to be transferred to the mixer. In this phase the agitator automatically reduces the rotation speed.

The fillerization takes place in the holding tanks using a venting intake system that drastically reduces, barely eliminate it completely, the emission of dust in the fume extraction systems.

The mixer, the holding tank and the loading system are therefore a unique preparation unit.

The compound preparation mixer is equipped with a fast stirrer in which the modifying polymers are dispersed. Once the compound is ready, the decanting is carried out by gravity, and subsequently the procedures for adding further bitumen and filling the filler can be started.

All the holding tanks are connected to the impregnation group through a circuit called a ring. From the chosen holding tank and ready to be processed, it is taken with a pump through a rotary pre-filter with a filtering capacity of 5 mm. Before reaching the impregnation , the compound is again filtered, always with a rotary system, but this time with a filtering capacity of 0.5 mm.

Note: in the case of production with two or three different compounds, it is necessary to check whether additional vessels are needed to operate continuously.

HOLDING TANK AGITATORS

MIXER AGITATORS

FILTERS

PUMPS

P.IVA / C.F: : 00494230204 - Copyright © 1969-2022 F.lli Cavinato srl - Costruzioni Meccaniche - Numero REA: MN-135572 - Capitale sociale i.v. € 206.508,75